Whether new construction or replacement system, commercial or residential, Bacon Civil Design will work to develop the best possible solution to fit both your property and your budget. Many septic system technologies exist and can be utilized depending on the situation.

SAMPLE APPROVED PLANS

(click design to view in Adobe Reader)

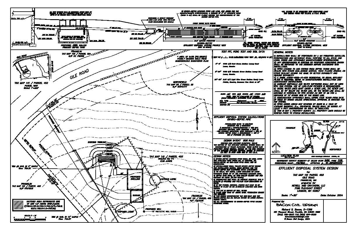
New Construction, Enviro-Septic System, Franklin, NH

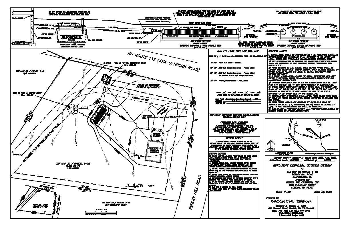
New Construction, Enviro-Septic System, Sanbornton, NH

 

For more information contact:

Bacon Civil Design

167 Gile Road

Nottingham, NH 03290

(603) 770-3107

info@baconcivildesign.com

 

E-mail the BCD Webmaster with questions or comments.
Copyright © 2019 Bacon Civil Design      Last modified: December 14, 2019